
|
Проект дома из бревна «О-91»
Общая площадь: 169 м.кв.
Стоимость строительства (базовый состав работ и комплектации)
| Стеновой материал и его объем (м3) |
п/материал, м3 |
всего, м3 |
Стоимость дома со сборкой |
Бревно оцилиндрованное (Архангельск) |
200мм |
65,66 |
23,70 |
89,36 |
1 328 806 руб. |
| 220мм |
70,11 |
23,70 |
93,81 |
1 352 231 руб. |
| 240мм |
77,78 |
23,70 |
101,48 |
1 488 720 руб. |
| 260мм |
84,75 |
23,70 |
108,45 |
1 625 762 руб. |
| 280мм |
90,77 |
23,70 |
114,47 |
1 734 910 руб. |
|
Стоимость фундамента
| Тип фундамента |
Объем |
Стоимость, руб |
| Монолитный армированный мелкозаглубленный ленточный фундамент сечением 0,3м*0,7м с устройством песчаной подушки 300мм | 17.38 м3 | 295 453 руб. |
| Монолитный армированный мелкозаглубленный ленточный фундамент сечением 0,4м*0,7м с устройством песчаной подушки 300мм | 23.17 м3 | 393 938 руб. |
| Свайно-винтовой фундамент 108/300/2500мм/3,0м (обвязка брус 200*200мм) | 82.76 пог.м. | 140 692 руб. |
|
Стоимость проекта:
| Вид проектной документации |
Стоимость, руб |
| Эскизный проект: | 7000 руб. |
| Архитектурный проект (раздел АР): | 25000 руб. |
| Архитектурный проект (раздел АР) при заказе строительства: | бесплатно |
| Спецификация стеновых элементов (производственная): | 25000 руб. |
| Другие разделы (конструкторский, водоснабжение, отопление, электрика и т.д.): | договорная |
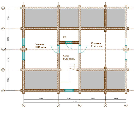
План первого этажа 
План второго этажа 
|

|