
|
Проект дома из бревна «О-78»
Общая площадь: 153.8 м.кв.
В этом проекте бревенчатого дома сочетаются оригинальность внешнего вида и удобное планировочное решение.
Стоимость строительства (базовый состав работ и комплектации)
| Стеновой материал и его объем (м3) |
п/материал, м3 |
всего, м3 |
Стоимость дома со сборкой |
Бревно оцилиндрованное (Архангельск) |
200мм |
66,88 |
30,56 |
97,44 |
1 453 637 руб. |
| 220мм |
73,64 |
30,56 |
104,20 |
1 506 085 руб. |
| 240мм |
80,48 |
30,56 |
111,04 |
1 632 859 руб. |
| 260мм |
86,50 |
30,56 |
117,06 |
1 759 045 руб. |
| 280мм |
94,46 |
30,56 |
125,02 |
1 892 369 руб. |
|
Стоимость фундамента
| Тип фундамента |
Объем |
Стоимость, руб |
| Монолитный армированный мелкозаглубленный ленточный фундамент сечением 0,3м*0,7м с устройством песчаной подушки 300мм | 15.05 м3 | 255 791 руб. |
| Монолитный армированный мелкозаглубленный ленточный фундамент сечением 0,4м*0,7м с устройством песчаной подушки 300мм | 20.06 м3 | 341 054 руб. |
| Свайно-винтовой фундамент 108/300/2500мм/3,0м (обвязка брус 200*200мм) | 71.65 пог.м. | 121 805 руб. |
|
Стоимость проекта:
| Вид проектной документации |
Стоимость, руб |
| Эскизный проект: | 5000 руб. |
| Архитектурный проект (раздел АР): | 19000 руб. |
| Архитектурный проект (раздел АР) при заказе строительства: | бесплатно |
| Спецификация стеновых элементов (производственная): | 19000 руб. |
| Другие разделы (конструкторский, водоснабжение, отопление, электрика и т.д.): | договорная |
План первого этажа 
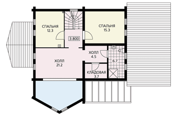
План второго этажа 
|

|