
|
Проект дома из бревна оцилиндровки «О-80»
Общая площадь: 158 м.кв.
Стоимость строительства (базовый состав работ и комплектации)
| Стеновой материал и его объем (м3) |
п/материал, м3 |
всего, м3 |
Стоимость дома со сборкой |
Бревно оцилиндрованное (Архангельск) |
200мм |
86,48 |
18,87 |
105,35 |
1 502 372 руб. |
| 220мм |
93,71 |
18,87 |
112,58 |
1 562 612 руб. |
| 240мм |
103,25 |
18,87 |
122,12 |
1 716 160 руб. |
| 260мм |
109,39 |
18,87 |
128,26 |
1 845 466 руб. |
| 280мм |
120,29 |
18,87 |
139,16 |
2 024 135 руб. |
|
Стоимость фундамента
| Тип фундамента |
Объем |
Стоимость, руб |
| Монолитный армированный мелкозаглубленный ленточный фундамент сечением 0,3м*0,7м с устройством песчаной подушки 300мм | 15.00 м3 | 255 077 руб. |
| Монолитный армированный мелкозаглубленный ленточный фундамент сечением 0,4м*0,7м с устройством песчаной подушки 300мм | 20.01 м3 | 340 102 руб. |
| Свайно-винтовой фундамент 108/300/2500мм/3,0м (обвязка брус 200*200мм) | 71.45 пог.м. | 121 465 руб. |
|
Стоимость проекта:
| Вид проектной документации |
Стоимость, руб |
| Эскизный проект: | 5000 руб. |
| Архитектурный проект (раздел АР): | 19000 руб. |
| Архитектурный проект (раздел АР) при заказе строительства: | бесплатно |
| Спецификация стеновых элементов (производственная): | 19000 руб. |
| Другие разделы (конструкторский, водоснабжение, отопление, электрика и т.д.): | договорная |
План первого этажа 
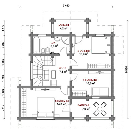
План второго этажа 
|

|