
|
Проект дома из бревна «О-95»
Общая площадь: 245.50 м.кв.
Стоимость строительства (базовый состав работ и комплектации)
| Стеновой материал и его объем (м3) |
п/материал, м3 |
всего, м3 |
Стоимость дома со сборкой |
Бревно оцилиндрованное (Архангельск) |
200мм |
113,61 |
26,83 |
140,44 |
2 011 554 руб. |
| 220мм |
123,35 |
26,83 |
150,18 |
2 093 475 руб. |
| 240мм |
136,04 |
26,83 |
162,87 |
2 257 765 руб. |
| 260мм |
142,15 |
26,83 |
168,98 |
2 351 418 руб. |
| 280мм |
156,46 |
26,83 |
183,29 |
2 620 445 руб. |
|
Стоимость фундамента
| Тип фундамента |
Объем |
Стоимость, руб |
| Монолитный армированный мелкозаглубленный ленточный фундамент сечением 0,3м*0,7м с устройством песчаной подушки 300мм | 19.20 м3 | 326 369 руб. |
| Монолитный армированный мелкозаглубленный ленточный фундамент сечением 0,4м*0,7м с устройством песчаной подушки 300мм | 25.60 м3 | 435 159 руб. |
| Свайно-винтовой фундамент 108/300/2500мм/3,0м (обвязка брус 200*200мм) | 91.42 пог.м. | 155 414 руб. |
|
Стоимость проекта:
| Вид проектной документации |
Стоимость, руб |
| Эскизный проект: | 7000 руб. |
| Архитектурный проект (раздел АР): | 21000 руб. |
| Архитектурный проект (раздел АР) при заказе строительства: | бесплатно |
| Спецификация стеновых элементов (производственная): | 21000 руб. |
| Другие разделы (конструкторский, водоснабжение, отопление, электрика и т.д.): | договорная |
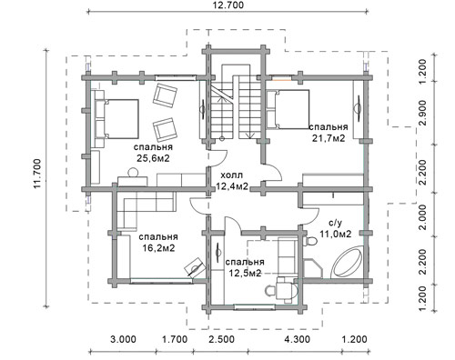
План первого этажа 
План второго этажа 
|

|