doma-brevno@mail.ru
 

 

Продажа проектов деревянных домов

НазадВерсия для печати

Проект дома из оцилиндрованного бревна «О-88»

Проект дома из оцилиндрованного бревна
Купить проект Купить проект

Общая площадь: 136 м.кв.

Стоимость строительства

(базовый состав работ и комплектации)

Стеновой материал и его объем (м3) п/материал, м3 всего, м3 Стоимость дома со сборкой
Бревно оцилиндрованное
(Архангельск)
200мм 77,43 22,91 100,34 1 434 652 руб.
220мм 82,76 22,91 105,67 1 472 725 руб.
240мм 91,60 22,91 114,51 1 622 345 руб.
260мм 98,11 22,91 121,02 1 755 077 руб.
280мм 107,01 22,91 129,92 1 904 745 руб.
В таблице указана ориентировочная стоимость строительства, которая может изменяться в зависимости от местоположения и условий строительства.

Стоимость фундамента

Тип фундамента Объем Стоимость, руб
Монолитный армированный мелкозаглубленный ленточный фундамент сечением 0,3м*0,7м с устройством песчаной подушки 300мм18.47 м3313 910 руб.
Монолитный армированный мелкозаглубленный ленточный фундамент сечением 0,4м*0,7м с устройством песчаной подушки 300мм24.62 м3418 547 руб.
Свайно-винтовой фундамент 108/300/2500мм/3,0м (обвязка брус 200*200мм)87.93 пог.м.149 481 руб.
В таблице указана ориентировочная стоимость строительства, которая может изменяться в зависимости от местоположения и условий строительства.

Стоимость проекта:

Вид проектной документации Стоимость, руб
Эскизный проект:5000 руб.
Архитектурный проект (раздел АР): 17000 руб.
Архитектурный проект (раздел АР) при заказе строительства: бесплатно
Спецификация стеновых элементов (производственная): 17000 руб.
Другие разделы (конструкторский, водоснабжение, отопление, электрика и т.д.): договорная
Получить консультацию по вопросам строительства дома или проекта Вы можете по тел. (495) 268-07-20 (без выходных) или по e-mail: doma-brevno@mail.ru. Будем рады ответить на Ваши вопросы.
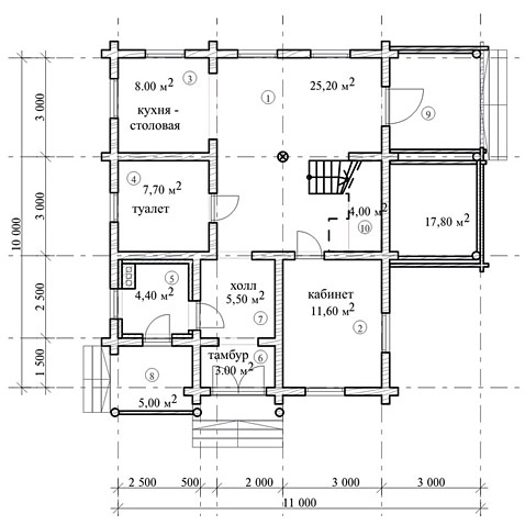
План первого этажа
План первого этажа
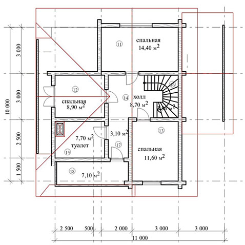
План второго этажа
План второго этажа

   

 



 

Изменение проекта дома