doma-brevno@mail.ru
 

 

Продажа проектов деревянных домов

НазадВерсия для печати

Проект коттеджа из оцилиндрованного бревна «О-143»

Коттедж из оцилиндрованного бревна
Купить проект Купить проект

Общая площадь: 218.00 м.кв.

Стоимость строительства

(базовый состав работ и комплектации)

Стеновой материал и его объем (м3) п/материал, м3 всего, м3 Стоимость дома со сборкой
Бревно оцилиндрованное
(Архангельск)
200мм 83,46 30,31 113,77 1 666 564 руб.
220мм 90,06 30,31 120,37 1 712 844 руб.
240мм 99,19 30,31 129,50 1 842 170 руб.
260мм 105,89 30,31 136,20 1 977 689 руб.
280мм 115,87 30,31 146,18 2 143 745 руб.
В таблице указана ориентировочная стоимость строительства, которая может изменяться в зависимости от местоположения и условий строительства.

Стоимость фундамента

Тип фундамента Объем Стоимость, руб
Монолитный армированный мелкозаглубленный ленточный фундамент сечением 0,3м*0,7м с устройством песчаной подушки 300мм23.63 м3401 625 руб.
Монолитный армированный мелкозаглубленный ленточный фундамент сечением 0,4м*0,7м с устройством песчаной подушки 300мм31.50 м3535 500 руб.
Свайно-винтовой фундамент 108/300/2500мм/3,0м (обвязка брус 200*200мм)112.50 пог.м.191 250 руб.
В таблице указана ориентировочная стоимость строительства, которая может изменяться в зависимости от местоположения и условий строительства.

Стоимость проекта:

Вид проектной документации Стоимость, руб
Эскизный проект:7000 руб.
Архитектурный проект (раздел АР): 21000 руб.
Архитектурный проект (раздел АР) при заказе строительства: бесплатно
Спецификация стеновых элементов (производственная): 21000 руб.
Другие разделы (конструкторский, водоснабжение, отопление, электрика и т.д.): договорная
Получить консультацию по вопросам строительства дома или проекта Вы можете по тел. (495) 268-07-20 (без выходных) или по e-mail: doma-brevno@mail.ru. Будем рады ответить на Ваши вопросы.
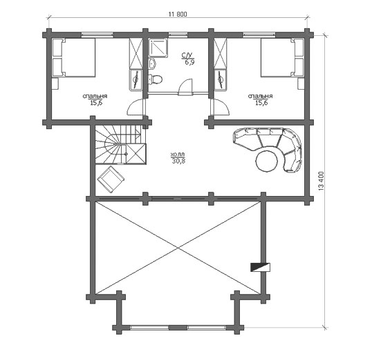
План первого этажа
План первого этажа
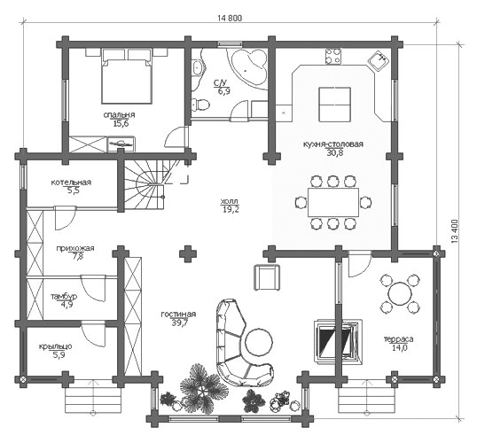
План второго этажа
План второго этажа

Коттедж из оцилиндрованного бревна

Интересный коттедж из оцилиндрованного бревна, сочетающий элементы стиля шале и черты современной деревянной архитектуры.



 

Изменение проекта дома