doma-brevno@mail.ru
 

 

Продажа проектов деревянных домов

НазадВерсия для печати

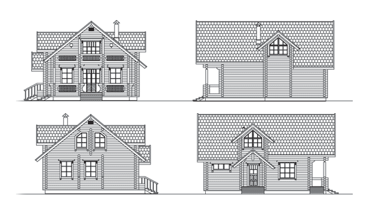
Проект деревянного дома из оцилиндрованного бревна «О-52»

Проект деревянного дома из бревна
Купить проект Купить проект

Общая площадь: 117.00 м.кв.

Стоимость строительства

(базовый состав работ и комплектации)

Стеновой материал и его объем (м3) п/материал, м3 всего, м3 Стоимость дома со сборкой
Бревно оцилиндрованное
(Архангельск)
200мм 65,76 23,68 89,44 1 320 624 руб.
220мм 70,00 23,68 93,68 1 349 409 руб.
240мм 77,50 23,68 101,18 1 483 934 руб.
260мм 81,72 23,68 105,40 1 588 936 руб.
280мм 90,03 23,68 113,71 1 724 429 руб.
В таблице указана ориентировочная стоимость строительства, которая может изменяться в зависимости от местоположения и условий строительства.

Стоимость фундамента

Тип фундамента Объем Стоимость, руб
Монолитный армированный мелкозаглубленный ленточный фундамент сечением 0,3м*0,7м с устройством песчаной подушки 300мм18.75 м3318 801 руб.
Монолитный армированный мелкозаглубленный ленточный фундамент сечением 0,4м*0,7м с устройством песчаной подушки 300мм25.00 м3425 068 руб.
Свайно-винтовой фундамент 108/300/2500мм/3,0м (обвязка брус 200*200мм)89.30 пог.м.151 810 руб.
В таблице указана ориентировочная стоимость строительства, которая может изменяться в зависимости от местоположения и условий строительства.

Стоимость проекта:

Вид проектной документации Стоимость, руб
Эскизный проект:5000 руб.
Архитектурный проект (раздел АР): 17000 руб.
Архитектурный проект (раздел АР) при заказе строительства: бесплатно
Спецификация стеновых элементов (производственная): 17000 руб.
Другие разделы (конструкторский, водоснабжение, отопление, электрика и т.д.): договорная
Получить консультацию по вопросам строительства дома или проекта Вы можете по тел. (495) 268-07-20 (без выходных) или по e-mail: doma-brevno@mail.ru. Будем рады ответить на Ваши вопросы.
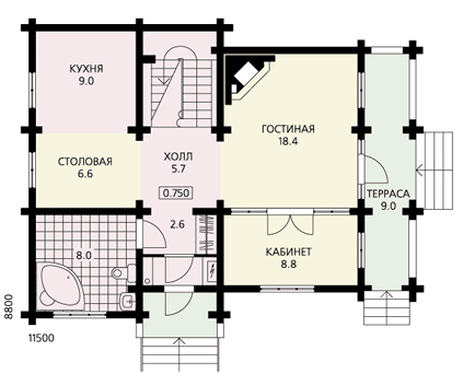
План первого этажа
План первого этажа
План второго этажа
План второго этажа



 

Изменение проекта дома