doma-brevno@mail.ru
 

 

Продажа проектов деревянных домов

НазадВерсия для печати

Проект дома из бревна «О-86»

Проект деревянного дома из бревна
Купить проект Купить проект

Общая площадь: 219 м.кв.

Стоимость строительства

(базовый состав работ и комплектации)

Стеновой материал и его объем (м3) п/материал, м3 всего, м3 Стоимость дома со сборкой
Бревно оцилиндрованное
(Архангельск)
200мм 90,91 24,05 114,96 1 665 029 руб.
220мм 99,41 24,05 123,46 1 736 112 руб.
240мм 108,27 24,05 132,32 1 858 981 руб.
260мм 115,43 24,05 139,48 2 000 544 руб.
280мм 126,42 24,05 150,47 2 182 898 руб.
В таблице указана ориентировочная стоимость строительства, которая может изменяться в зависимости от местоположения и условий строительства.

Стоимость фундамента

Тип фундамента Объем Стоимость, руб
Монолитный армированный мелкозаглубленный ленточный фундамент сечением 0,3м*0,7м с устройством песчаной подушки 300мм19.48 м3331 118 руб.
Монолитный армированный мелкозаглубленный ленточный фундамент сечением 0,4м*0,7м с устройством песчаной подушки 300мм25.97 м3441 490 руб.
Свайно-винтовой фундамент 108/300/2500мм/3,0м (обвязка брус 200*200мм)92.75 пог.м.157 675 руб.
В таблице указана ориентировочная стоимость строительства, которая может изменяться в зависимости от местоположения и условий строительства.

Стоимость проекта:

Вид проектной документации Стоимость, руб
Эскизный проект:7000 руб.
Архитектурный проект (раздел АР): 21000 руб.
Архитектурный проект (раздел АР) при заказе строительства: бесплатно
Спецификация стеновых элементов (производственная): 21000 руб.
Другие разделы (конструкторский, водоснабжение, отопление, электрика и т.д.): договорная
Получить консультацию по вопросам строительства дома или проекта Вы можете по тел. (495) 268-07-20 (без выходных) или по e-mail: doma-brevno@mail.ru. Будем рады ответить на Ваши вопросы.
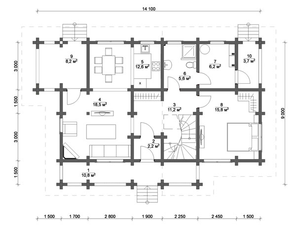
План первого этажа
План первого этажа
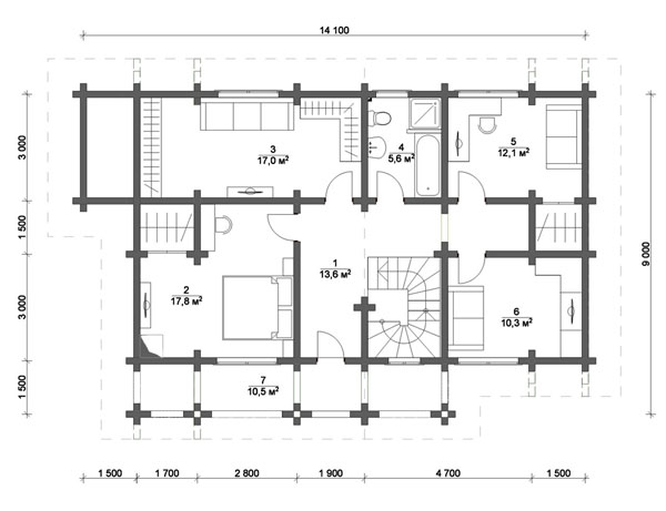
План второго этажа
План второго этажа



 

Изменение проекта дома